Bâche de façade pour mobil-home
Code de l'article :
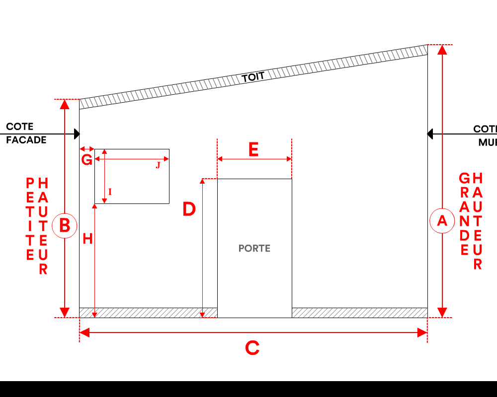
Dimension
- Grande hauteur (A) : 230 cm
- Petite hauteur (B) : 200 cm
- Longueur (C) : 600 cm
- Surface : 13.8m²
- Position de la rampe (C) : Aucune
- Ouverture de la bâche : Non
- Décrochage de la gouttière : Aucune
Porte
- Position : Centre
- Hauteur (D) : 204 cm
- Largeur (E) : 83 cm
- Avec Fenêtre : : Non
- Fenêtre avec volet : : Non
Fenêtre
- Position : Droite
- Hauteur (I) : 40 cm
- Largeur (J) : 80 cm
- Distance (G) : 30 cm
- Distance (H) : 30 cm
- Fenêtre avec volet : : Non
Type de toile
- Nom : Protect 670 : La référence en matière de protection étanche
- Couleur : Gris clair RAL 7038
- Poids : 0.67kg/m²
Fixations
- Haut : Tourniquets
- Gauche : Tourniquets
- Droit : Tourniquets
- Bas : Tourniquets
Poids Total : 10.07kg
Disponibilité / livraison
Nous vous invitons à prendre contact avec nos services pour obtenir plus d'informations.

